Musée gruérien

Musée gruérien Bulle2019

next project previous project
Bildschirmfoto 2020 10 29 um 11 00 10 Kopie

Croissance d’un tissu embryonnaire

Bildschirmfoto 2020 10 29 um 10 59 20 Kopie

Plan de situ­ation de La Maison du Patrimoine et de la Culture et de ses monuments.

Bildschirmfoto 2020 10 29 um 11 00 37 Kopie

Le Sphinx gardi­en des pyramides.

Bildschirmfoto 2020 10 29 um 10 59 06 Kopie

Le Sphinx sur­veille et protège les tombeaux des Pharaons. Il se dresse comme le Gardien des archives.

Bildschirmfoto 2020 10 29 um 10 58 30 Kopie

Plan de situation

Bildschirmfoto 2020 10 29 um 10 59 38 Kopie

La Maison du Patrimoine et de la Culture à tête de Sphinx, gardi­enne du château et de la cul­ture gruyèrienne.

Bildschirmfoto 2020 10 29 um 10 59 58 Kopie

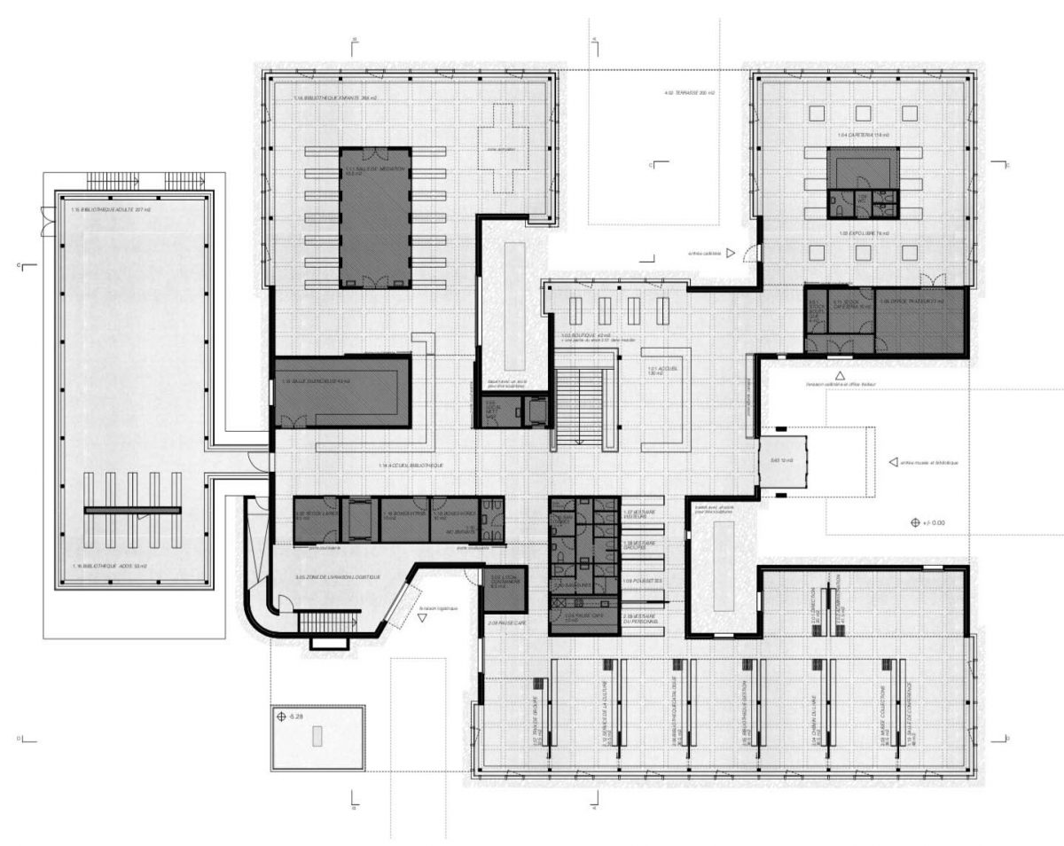
Le rez-de-chaussée croît sur la même trame que l’existant, les por­teurs se pla­cent de 3 en 3.

Bildschirmfoto 2020 10 29 um 11 01 35 Kopie

Rez de chaussée

Bildschirmfoto 2020 10 29 um 11 04 12 Kopie

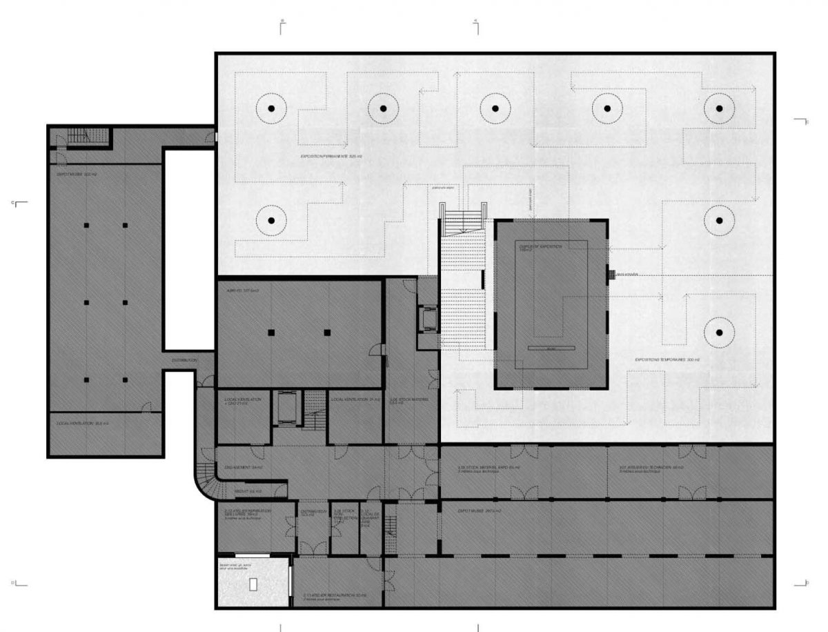
-2

Bildschirmfoto 2020 10 29 um 11 04 37 Kopie

Coupes

Unbenannt next

Entre les pattes du sphinx, le socle dans la cour­ette de l’entrée peut ser­vir de présentoir extérieur pour com­mu­niquer la thématique de l’exposition.



Bildschirmfoto 2020 10 29 um 11 02 52 Kopie

Les espaces des cours extérieurs lient les fonc­tions entre elles.

Unbenannt 1

Les élé­ments du pla­fond,qui matéri­alis­ent la trame du bâti­ment, vibrent comme des petites vagues sur un lac de la Gruyère ren­ver­sé et s’écoulent dans toutes les nou­velles parties de la mais­on du patrimoine.


Bildschirmfoto 2020 10 29 um 11 03 04 Kopie

Grâce à une cour­ette en pro­fondeur avec un socle d’exposition, les espaces de res­taur­a­tion des œuvres profit­ent de la lumière du jour et étab­lis­sent un con­tact visuel avec les passants curieux.