Maison Braillard

Maison Braillard Chenens2005

next project previous project
Babl Braillard 05

Habiter et trav­ailler séparé dans la même ferme.

Studio and apart­ment under the same roof, but in dis­tance, for two artists in the same house, without an inner staircase. 

Babl Braillard 012
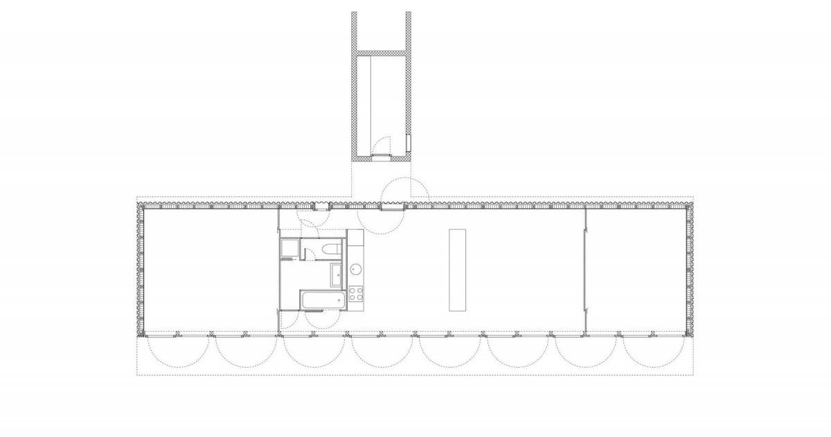
11 BRAILLARD D rez

Rez hab­it­a­tion

11 BRAILLARD etage

Étage, trav­ail

11 BRAILLARD D COUPE

Une fond­a­tion et un toit pour les deux étages.

Babl Braillard 011
Babl Braillard 008

Entrée dans la cuisine.

Babl Braillard 009

Enfilades

Babl Braillard 007

Travail en haut.

Babl Braillard 006

Communication avec le bas, on parle fort…

Babl Braillard 014

La mais­on rurale se met à la lim­ite de la commune.

Babl Braillard 05

Studio and apart­ment under the same roof, but in dis­tance, for two artists in the same house, without an inner staircase. 

Babl Braillard 012
11 BRAILLARD D rez
11 BRAILLARD etage
11 BRAILLARD D COUPE
Babl Braillard 011
Babl Braillard 008
Babl Braillard 009
Babl Braillard 007
Babl Braillard 006
Babl Braillard 014