City Centre

City Centre Montreuxongoing

next project previous project

Reconversion of a mod­ern­ist apart­ment house in the centre of Montreux.

The façade bet­ter insu­lated, the infra­struc­ture renewed and inhab­it­ants who will stay dur­ing the inter­ven­tions; a crit­ic­al challenge.

Image aerien
200010 Alpes 5 Paix 8 1

The main façade with a tri­an­gu­lar shaped square in his front

DSCF6497

View from the roof top and some smoke

Bildschirmfoto 2025 10 22 um 10 03 49

The ori­gin­al draw­ing by archi­tect René Giovannoni, 1956

AC92535 E B2 B8 458 B B349 851 AFE02 DEA5

On the right, the build­ing just fin­ished in 1959

IMG 2137

The base­ment clad­ded with marble

Bildschirmfoto 2025 10 22 um 07 27 29

Finely struc­tured facades

Bildschirmfoto 2025 10 22 um 10 09 56
Bildschirmfoto 2025 10 22 um 07 25 50

The neces­sary interventions

Bildschirmfoto 2025 10 22 um 07 28 39
Bildschirmfoto 2025 10 22 um 10 21 59

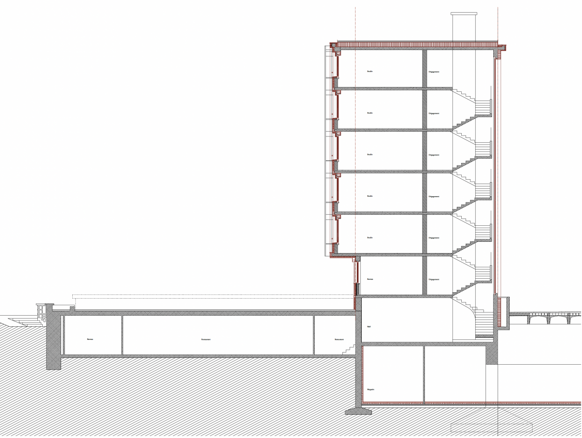
Section

Bildschirmfoto 2025 10 22 um 10 11 05

Detail

Bildschirmfoto 2025 10 22 um 10 11 34
Bildschirmfoto 2025 10 22 um 10 10 32
Bildschirmfoto 2025 10 22 um 10 57 28

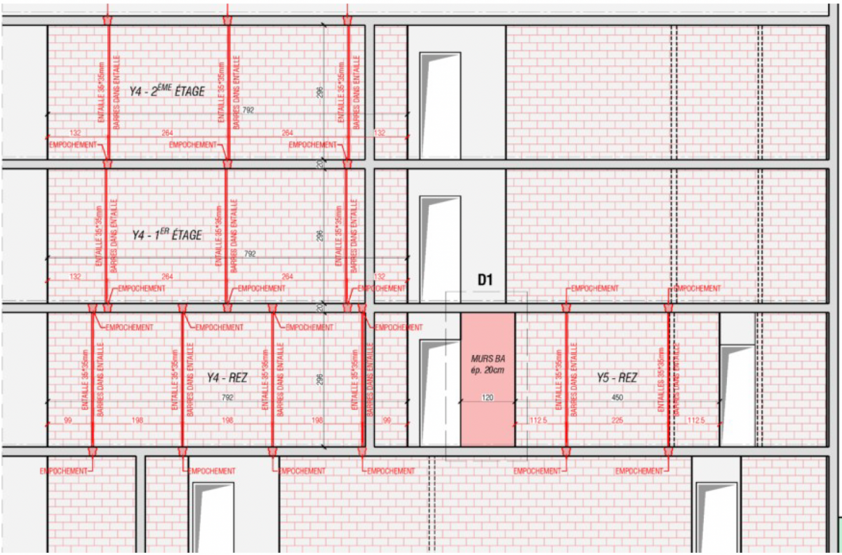
Seismic rein­force­ments

Bildschirmfoto 2025 10 22 um 10 58 13
Bildschirmfoto 2025 10 22 um 10 59 57
Bildschirmfoto 2025 10 22 um 10 58 53

Seismic wall rein­force­ments with pulling steel-bars (Re-Bar)

Bildschirmfoto 2025 10 22 um 10 59 21
DSCF6472

Shall, or can we top it up?

Surelevation google earth situation Kopie

Client:

RETRAITESPOPULAIRES

Adress:

Av. Paix 8 — Av. Alpes 5, Montreux

Approche urbaine et architecturale

Le bâti­ment est d’un intérêt remarquable du fait de sa pos­i­tion en clôture de la per­spect­ive de la rue des Alpes. Il artic­ule le départ de la rue de la Paix par une façade incur­vée typique de la con­cep­tion des immeubles des années 60. La façade est cara­ctérisée par les différences qu’elle exprime entre la rue de la Paix qui se veut plus noble, alors que l’aile sur la rue des Alpes est plus modeste.

Le soin porté au bâti­ment par l’architecte est digne de con­ser­va­tion. L’assainissement éner­gétique se veut respectueux du cara­ctère de l’immeuble qui con­stitue un mani­feste de son époque dans ce tis­sus urbain d’autre part composite.

L’immeuble est défini par des cadres ornant la total­ité des loge­ments et d’un socle suivant l’alignement urbain. Les ban­deaux hori­zon­taux sont mar­qués par le pilier entre fenêtre qui est en retrait. L’immeuble exprime une qual­ité tec­to­nique à tra­vers la suc­ces­sion des hori­zontales et ver­ticales, qui à notre sens peut être con­ser­vée voir renforcée.

L’assainissement éner­gétique doit se faire par l’extérieur, à l’aide d’isolants rap­portés sur les crépis existants. Le bâti­ment voisin est assez déter­min­ant avec son revête­ment en travertin qui se veut être à la hauteur d’un cer­tain stand­ing pour Montreux. La pro­pos­i­tion archi­tec­turale va dans le sens de soulign­er un dis­pos­i­tif qui existe déjà sur la façade Sud-Ouest, soit de mar­quer les piliers ver­ti­caux entre fenêtres par une teinte con­trastée par rap­port aux ban­deaux. L’idée serait alors de revêtir les piliers et niches de bal­cons, et le socle d’un matériau de valeur (car­rel­age ou travertin) alors que les ban­deaux et grandes sur­faces crépies le restent, le tout dans une gamme de teinte s’approchant du bâti­ment voisin pour soulign­er la qual­ité de cet îlot en pointe et sortir des valeurs de gris actuelles.

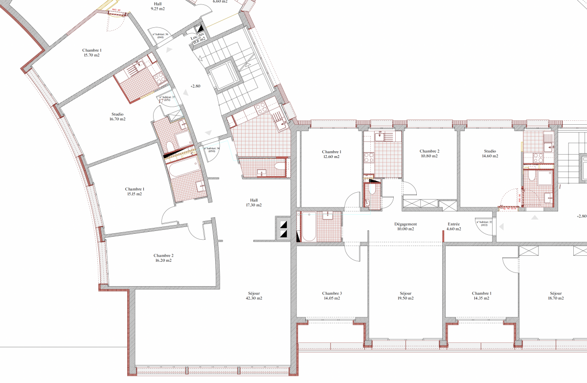
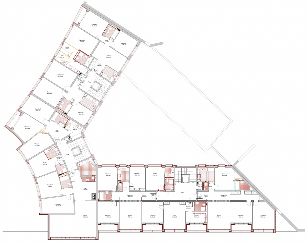
Il sub­siste à l’intérieur nombre d’éléments ori­gin­aux qui sont intéress­ants, l’assainissement dev­rait pro­poser la con­ser­va­tion du style archi­tec­tur­al tout en apport­ant une touché de mod­ern­ité. On note la qual­ité de l’espace en tri­angle situé sur la pointe de la par­celle. Il vaut peut-être la peine d’évaluer la pos­sib­il­ité d’y créer une placette à l’échelle du quart­i­er et des habitants.

Reconversion of a mod­ern­ist apart­ment house in the centre of Montreux.

The façade bet­ter insu­lated, the infra­struc­ture renewed and inhab­it­ants who will stay dur­ing the inter­ven­tions; a crit­ic­al challenge.

Image aerien
200010 Alpes 5 Paix 8 1
DSCF6497
Bildschirmfoto 2025 10 22 um 10 03 49
AC92535 E B2 B8 458 B B349 851 AFE02 DEA5
IMG 2137
Bildschirmfoto 2025 10 22 um 07 27 29
Bildschirmfoto 2025 10 22 um 10 09 56
Bildschirmfoto 2025 10 22 um 07 25 50
Bildschirmfoto 2025 10 22 um 07 28 39
Bildschirmfoto 2025 10 22 um 10 21 59
Bildschirmfoto 2025 10 22 um 10 11 05
Bildschirmfoto 2025 10 22 um 10 11 34
Bildschirmfoto 2025 10 22 um 10 10 32
Bildschirmfoto 2025 10 22 um 10 57 28
Bildschirmfoto 2025 10 22 um 10 58 13
Bildschirmfoto 2025 10 22 um 10 59 57
Bildschirmfoto 2025 10 22 um 10 58 53
Bildschirmfoto 2025 10 22 um 10 59 21
DSCF6472
Surelevation google earth situation Kopie

Client:

RETRAITES POPULAIRES

Adress:

Av. Paix 8 — Av. Alpes 5, Montreux

Approche urbaine et architecturale

Le bâti­ment est d’un intérêt remarquable du fait de sa pos­i­tion en clôture de la per­spect­ive de la rue des Alpes. Il artic­ule le départ de la rue de la Paix par une façade incur­vée typique de la con­cep­tion des immeubles des années 60. La façade est cara­ctérisée par les différences qu’elle exprime entre la rue de la Paix qui se veut plus noble, alors que l’aile sur la rue des Alpes est plus modeste.

Le soin porté au bâti­ment par l’architecte est digne de con­ser­va­tion. L’assainissement éner­gétique se veut respectueux du cara­ctère de l’immeuble qui con­stitue un mani­feste de son époque dans ce tis­sus urbain d’autre part composite.

L’immeuble est défini par des cadres ornant la total­ité des loge­ments et d’un socle suivant l’alignement urbain. Les ban­deaux hori­zon­taux sont mar­qués par le pilier entre fenêtre qui est en retrait. L’immeuble exprime une qual­ité tec­to­nique à tra­vers la suc­ces­sion des hori­zontales et ver­ticales, qui à notre sens peut être con­ser­vée voir renforcée.

L’assainissement éner­gétique doit se faire par l’extérieur, à l’aide d’isolants rap­portés sur les crépis existants. Le bâti­ment voisin est assez déter­min­ant avec son revête­ment en travertin qui se veut être à la hauteur d’un cer­tain stand­ing pour Montreux. La pro­pos­i­tion archi­tec­turale va dans le sens de soulign­er un dis­pos­i­tif qui existe déjà sur la façade Sud-Ouest, soit de mar­quer les piliers ver­ti­caux entre fenêtres par une teinte con­trastée par rap­port aux ban­deaux. L’idée serait alors de revêtir les piliers et niches de bal­cons, et le socle d’un matériau de valeur (car­rel­age ou travertin) alors que les ban­deaux et grandes sur­faces crépies le restent, le tout dans une gamme de teinte s’approchant du bâti­ment voisin pour soulign­er la qual­ité de cet îlot en pointe et sortir des valeurs de gris actuelles.

Il sub­siste à l’intérieur nombre d’éléments ori­gin­aux qui sont intéress­ants, l’assainissement dev­rait pro­poser la con­ser­va­tion du style archi­tec­tur­al tout en apport­ant une touché de mod­ern­ité. On note la qual­ité de l’espace en tri­angle situé sur la pointe de la par­celle. Il vaut peut-être la peine d’évaluer la pos­sib­il­ité d’y créer une placette à l’échelle du quart­i­er et des habitants.