Route de Genève 95

Route de Genève 95 Lausanneongoing

next project previous project

The last part of the Sébeillon hous­ing pro­ject; a wooden stu­dio apart­ment block with a res­taur­ant in the basement.

Bildschirmfoto 2025 10 22 um 12 43 46

Quartier de Sébeillon

2 rdg sit n

The pro­ject is facing the grand CFF rail­way stock hall

4 rdg pers

A wooden con­struc­tion pro­tec­ted with cor­rig­ated panels

3 Bildschirmfoto 2025 09 24 um 07 56 00

Section

Bildschirmfoto 2025 10 22 um 12 51 26
6 rdg portes

Balconies, main stair and door handles fol­low the cir­cu­lar form

7 rdg int

inside, all wood

Bildschirmfoto 2025 09 24 um 07 54 50

Typology

Capture decran 2025 10 22 a 12 29 37

A con­crete core in the middle is sta­bil­ising the fili­grane struc­ture in wood

Capture decran 2025 10 22 a 12 34 20

Surrounded with ele­ments in wood

Bildschirmfoto 2025 09 24 um 07 57 56

The attic

Bildschirmfoto 2025 10 22 um 12 46 06

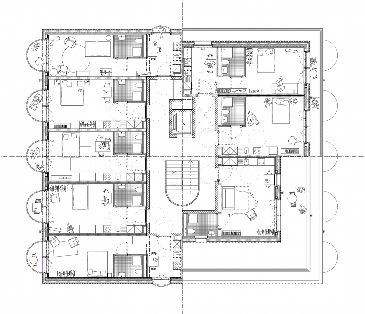
Ground floor

Bildschirmfoto 2025 10 22 um 12 46 37

Second floor

5 rdg balcons

Each stu­dio has a half-round bal­cony on the east or west side

Bildschirmfoto 2025 10 22 um 12 44 56
Bildschirmfoto 2025 10 22 um 12 45 32
1 rdg nuit

The entrance

Client: REALSTONE, Lausanne

The last part of the Sébeillon hous­ing pro­ject; a wooden stu­dio apart­ment block with a res­taur­ant in the basement.

Bildschirmfoto 2025 10 22 um 12 43 46
2 rdg sit n
4 rdg pers
3 Bildschirmfoto 2025 09 24 um 07 56 00
Bildschirmfoto 2025 10 22 um 12 51 26
6 rdg portes
7 rdg int
Bildschirmfoto 2025 09 24 um 07 54 50
Capture decran 2025 10 22 a 12 29 37
Capture decran 2025 10 22 a 12 34 20
Bildschirmfoto 2025 09 24 um 07 57 56
Bildschirmfoto 2025 10 22 um 12 46 06
Bildschirmfoto 2025 10 22 um 12 46 37
5 rdg balcons
Bildschirmfoto 2025 10 22 um 12 44 56
Bildschirmfoto 2025 10 22 um 12 45 32
1 rdg nuit

Client: REALSTONE, Lausanne