Station de police

Station de police Lausanne2015

next project previous project
Babl Stmartin 08

Reconversion and elev­a­tion in wood con­struc­tion of a 19th-cen­tury build­ing for the traffic police in the centre of Lausanne. A shift­able bronze screen on the ground floor pro­tects against agit­ated acts of angry drivers.

DSCN4905

Avant

DSC 3884

Après

Bildschirmfoto 2020 10 22 um 16 22 03 Kopie

Situation

Bildschirmfoto 2020 10 22 um 16 24 24 Kopie

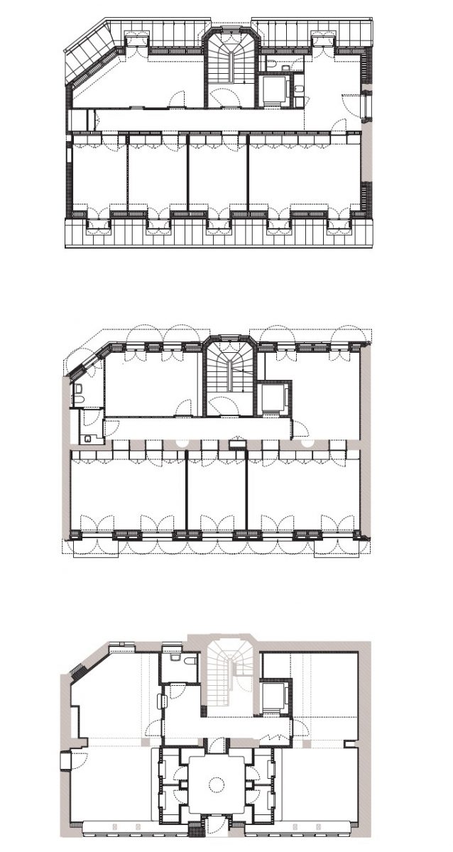
Plans

Bildschirmfoto 2020 10 22 um 16 22 37 Kopie

Coupe

Babl Stmartin 06

Ils enlèvent,

AUFBAU

et ils rajoutent.

DSC 3891
ST MARTIN ENTREE MONT

Les guichets.

Babl Stmartin 11
DSC 2417

Enfilades dans les bureaux.

Babl Stmartin 13
Babl Stmartin 12
Babl Stmartin 16
Babl Stmartin 15
POLICE ST MARTIN 1
Babl Stmartin 08

Reconversion and elev­a­tion in wood con­struc­tion of a 19th-cen­tury build­ing for the traffic police in the centre of Lausanne. A shift­able bronze screen on the ground floor pro­tects against agit­ated acts of angry drivers.

DSCN4905
DSC 3884
Bildschirmfoto 2020 10 22 um 16 22 03 Kopie
Bildschirmfoto 2020 10 22 um 16 24 24 Kopie
Bildschirmfoto 2020 10 22 um 16 22 37 Kopie
Babl Stmartin 06
AUFBAU
DSC 3891
ST MARTIN ENTREE MONT
Babl Stmartin 11
DSC 2417
Babl Stmartin 13
Babl Stmartin 12
Babl Stmartin 16
Babl Stmartin 15
POLICE ST MARTIN 1